Periton Road, Minehead
Property Features
- Character Property
- Very Large Plot
- Servant Bells
- Stunning Views
- Large Annexe
- Direct Access to Public Park
- Conservatory
- Gated Access
- Private Drive
Property Summary
Full Details
The Property
The property was constructed in 1900 in brick with a tiled roof under the stewardship of Captain John Kent Ridler for his own occupation. Cuzco was named after his favourite ship, the SS Cuzco, of which he was in command for several years.
The property incorporates many features typical of its era, including servant bells, attractive architraves and picture rails, along with more modern conveniences such as gas fired central heating and burglar alarm system. It enjoys views from the rear towards North Hill and the Bristol Channel and occupies a fine position on the edge of the seaside town of Minehead approximately half a mile from the town centre and all its facilities.
The Location
The popular holiday resort of Minehead is situated on the edge of Exmoor National Park near to some of the very best moorland and woodland countryside where many delightful walks and other country pursuits can be enjoyed. Many of the well known attractions of the West Somerset and North Devon areas are within short motoring distance. Minehead provides good shopping facilities , has primary and secondary schools and has a regular local bus service throughout the year. The West Somerset Steam Railway serves all the stations to Bishop Lydeard and there are regular buses serving the County town of Taunton some 25 miles away which has excellent shopping, leisure and entertainment facilities. Taunton also has direct access to the M5 motorway and is served by a mainline railway station.
The Accommodation
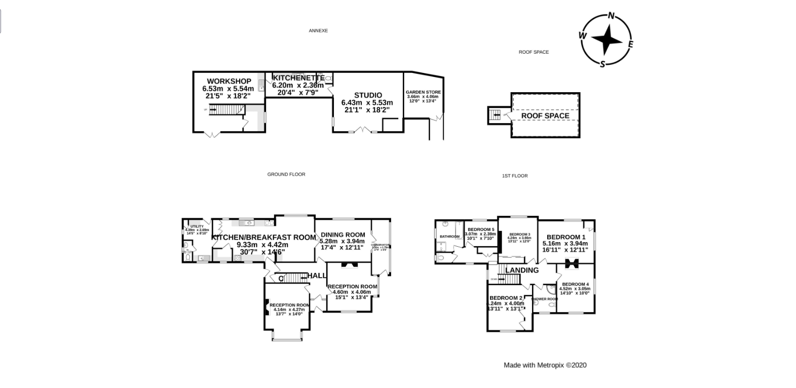
Measurements and the layout is set out in the attached floor plan and in brief the accommodation comprises:
Ground floor entrance vestibule
Ground Floor
Ground floor entrance vestibule
Spacious reception hall – cloaks, cupboard, door to outside
Sitting room – double aspect, attractive fireplace with gas fire
Drawing room – attractive fireplace with gas fire
Dining room – fireplace
Conservatory – doors to garden
Kitchen/Breakfast Room – Beautifully presented and modernised with an extensive range of granite work surfaces with cupboards and drawers under double Butler style sink unit, central work station, glazed dresser, gas fired Aga with four ovens for cooking, electric Aga with Halogen hob, double oven and grill, larder.
Utility Room – With sink, range of cupboards, Worcester gas fired boiler for central heating and domestic hot water, American style fridge/freezer, door to rear garden.
Cloakroom – With wash basin and WC
First Floor
First Floor Landing – Airing cupboard housing hot water pressure tank.
Separate WC – Basin and WC
Bathroom – With panelled bath, wash basin and shower
Bedroom 1 – Fitted wardrobes
Bedroom2 – Fitted wardrobes
Bedroom 3 – Double aspect
Bedroom 4 – Fitted wardrobes
Bedroom 5 – Shelf with hanging space
Shower room – With glazed cubicle and shower, wash basin and low level WC
Outside – Th property is approached at the front through double wooden entrance gates to a long sweeping driveway providing access and ample car parking and the house stands in well presented gardens to the front, side and rear with a variety of shrubs, flower beds and borders, and in all providing a fine feature of the property.
Brick-Built Annexe – With wooden decked veranda. Currently uses for summer entertaining, but provides fine potential for use as a separate office, student accommodation, games/hobbies room or for occupation by an elderly relative incorporating living room, kitchenette and separate WC. Adjoining there is a workshop and separate garden store with power and lighting.
Services
Mains electricity
water & drainage
Gas
Council Tax Band G
Tenure – Freehold.
Minehead
Nestled on the stunning Somerset coast, Minehead is a charming seaside town that serves as the perfect gateway to Exmoor National Park. This picturesque destination offers a delightful blend of natural beauty, rich history, and modern amenities, making it an ideal holiday spot for families, couples, and adventure seekers alike.
Minehead's crowning glory is its expansive sandy beach, perfect for lazy days in the sun or invigorating walks along the shoreline. The town's historic harbour and quaint fishing quarter provide a glimpse into its maritime past, while the 14th-century St Michael's Church perched on the hill offers breathtaking views of the bay.
Stroll down the tree-lined Avenue, where Victorian architecture houses a diverse array of independent shops, cosy tea rooms, and traditional pubs. For those seeking tranquillity, the flower-filled Blenheim Gardens provide a serene oasis in the heart of the town.
Outdoor enthusiasts will find themselves spoilt for choice. Minehead marks the starting point of the South West Coast Path, England's longest waymarked footpath stretching an impressive 630 miles. The surrounding countryside, including Exmoor National Park and the Quantock Hills, offers endless opportunities for hiking, cycling, and wildlife spotting.
Water sports aficionados can indulge in paddleboarding and kayaking, while history buffs will appreciate the town's well-preserved heritage, including the picturesque Church Steps and the charming West Somerset Railway.
With its perfect balance of seaside charm, natural beauty, and local culture, Minehead promises a memorable holiday experience for visitors of all ages. Whether you're seeking adventure, relaxation, or a bit of both, this delightful Somerset gem is sure to capture your heart.







































